FLOOR PLANS
WELCOME TO THE NEIGHBORHOOD!
55+ TOWN HOMES
We have 4 luxury townhome options to meet your needs. Our bonus room can be added to any of the 4 floor plans.
55+ SINGLE FAMILY
We have 36+ home sites. Homes will be unique and never have the same exterior elevation within the same division.
TRADITIONAL HOMES
Homes will all be unique and never have the same outside look or exterior elevation within the same division.
COMMERCIAL
Our commercial lots are positioned at the intersection of New Day Parkway and Northside Crossing Road
55+ ACTIVE LUXURY TOWN HOMES
We have 4 luxury townhome options to meet your needs. Our bonus room can be added to any of the 4 floor plans.
Floor plans, landscaping, fencing, and patio illustrations are conceptual and subject to change.
GRAND TETON
2 Bed | 2 Bath | 2023 sq. ft.
The largest of our luxury town homes. Add on our bonus room giving you at total of 2681 sq ft and an extra bathroom.
2 Bed | 2 Bath | 1922 sq. ft.
Our second largest luxuryl town home. Add on our bonus room, giving you a total of 2580 sq ft and and extra bathroom.
2 Bed | 2 Bath | 1773 sq. ft.
Add on our bonus room, giving you a total of 2431 sq ft and and extra bathroom.
2 Bed | 2 Bath | 1527 sq. ft.
Add on our bonus room, giving you a total of 2185 sq ft and and extra bathroom.
658 sq. ft.
This additional space can be added to any of the 4 luxury townhome floor plans.
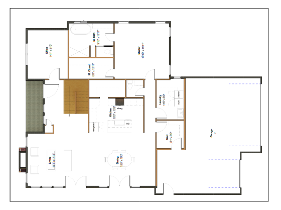
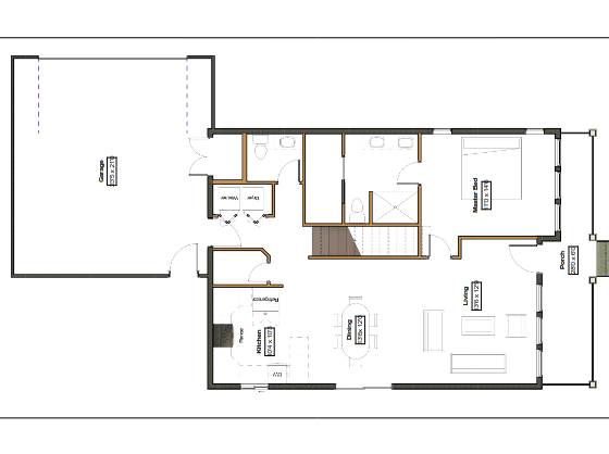
55+ ACTIVE LUXURY SINGLE FAMILY HOMES
55+ single family homes are currently being built and available for presell.
We have 36+ home sites. Homes will be unique and never have the same exterior elevation within the same division.
All homes will have a front porch and be interconnected to our walkway system.
Floor plans, landscaping, fencing, and patio illustrations are conceptual and subject to change.
2 | Bed | 2 Bath 1606 sq. ft.
2 bed 2 bath home with 1606 sq ft on the main floor. Add on an additional 601 sq ft bonus plan upstairs, making it a 3 bed 3 bath 2207 sq ft home.
4 Bed | 3 Bath | 2582 sq. ft.
Our largest floor plan in our 55+ division offering 1703 sq ft on main level and 825 sq ft upstairs for a total of 2582 sq ft.
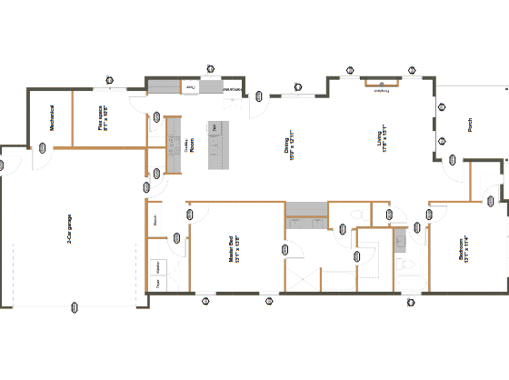
OUR TRADITIONAL HOMES
We are preselling our traditional homes. Homes may be customized to fit individual needs if purchased before built.
Homes will all be unique and never have the same outside look or exterior elevation within the same division. All homes will have a front porch and be interconnected to our walkway system.
Floor plans, landscaping, fencing, and patio illustrations are conceptual and subject to change.
4 Bed | 3.5 Bath | 3119 sq. ft.
Multi-level home with 1590 sq ft on main level and 1529 sq ft in basement.
4 Bed | 2.5 Bath | 2064 sq. ft.
Multi-level home with 1032 sq ft on main level and 1032 sq ft on upper level.
3 Bed | 3 Bath | 2207 sq. ft.
Multi-level home with 1606 sq ft on main level and 601 sq ft bonus room add on.
COMMERCIAL LOTS
Our commercial lots are perfectly positioned at the intersection of New Day Parkway and Northside Crossing Road and are ready for immediate build.
We will build to suit your needs.
We currently have 3 lots available ranging from .5 to 1 acre. Building sizes range from 2,000 sq. ft. to 8,000 sq. ft.
Contact us today to reserve your lot!
CONTACT US TODAY!
Ready to get started on the home of your dreams? Reach out to us today for a free consultation!
OUR INFO:
- 5730 Northside Crossing Chubbuck, ID 83202
- info@northsidecrossing.com
- (208) 223-0526
OUR PARTNERS:
